ZIMMERMANN-INGENIEURE GMBH i.L.

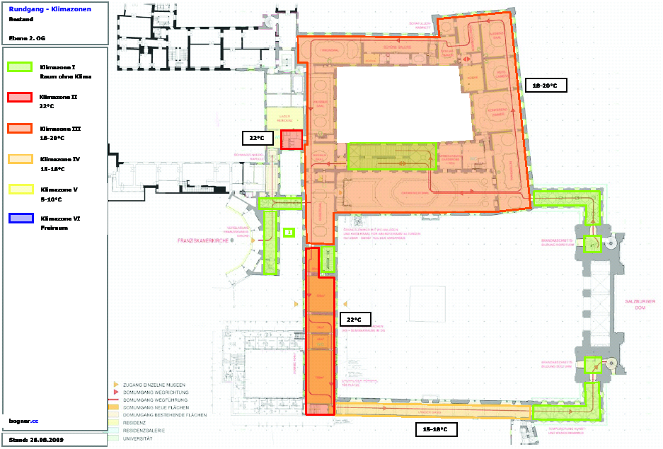
Domquartier

Bauherr: Salzburger Landesregierung
Architekt: Kaschl-Mühlfellner Architekten, Salzburg
HKLS-Planung: Zimmermann-Ingenieure, Bergeheim
Planung: August 2009 - Mai 2014
Museumsplaner: Firma bogner.cc, Wien
Zeitungsartikel: Salzburger Nachrichten








                                                                                                                                                                                                                                                                                                                                                                                                                                                           

Zimmermann-Ingenieure GmbH | Augustinerstraße 3 | 83395 Freilassing | Telefon 08654 48195-0 | Fax 08654 48195-19
gang